With Thorndike, you always talk to a real person. Our team of experts is ready to answer questions about plans, pricing, and availability.
what type of question do you have?
For customer service, please submit all requests on the Thorndike Customer Service Portal. If you are unable to log in or need further assistance, please fill out the form below.
Completed
Completed
in
Norton, MA

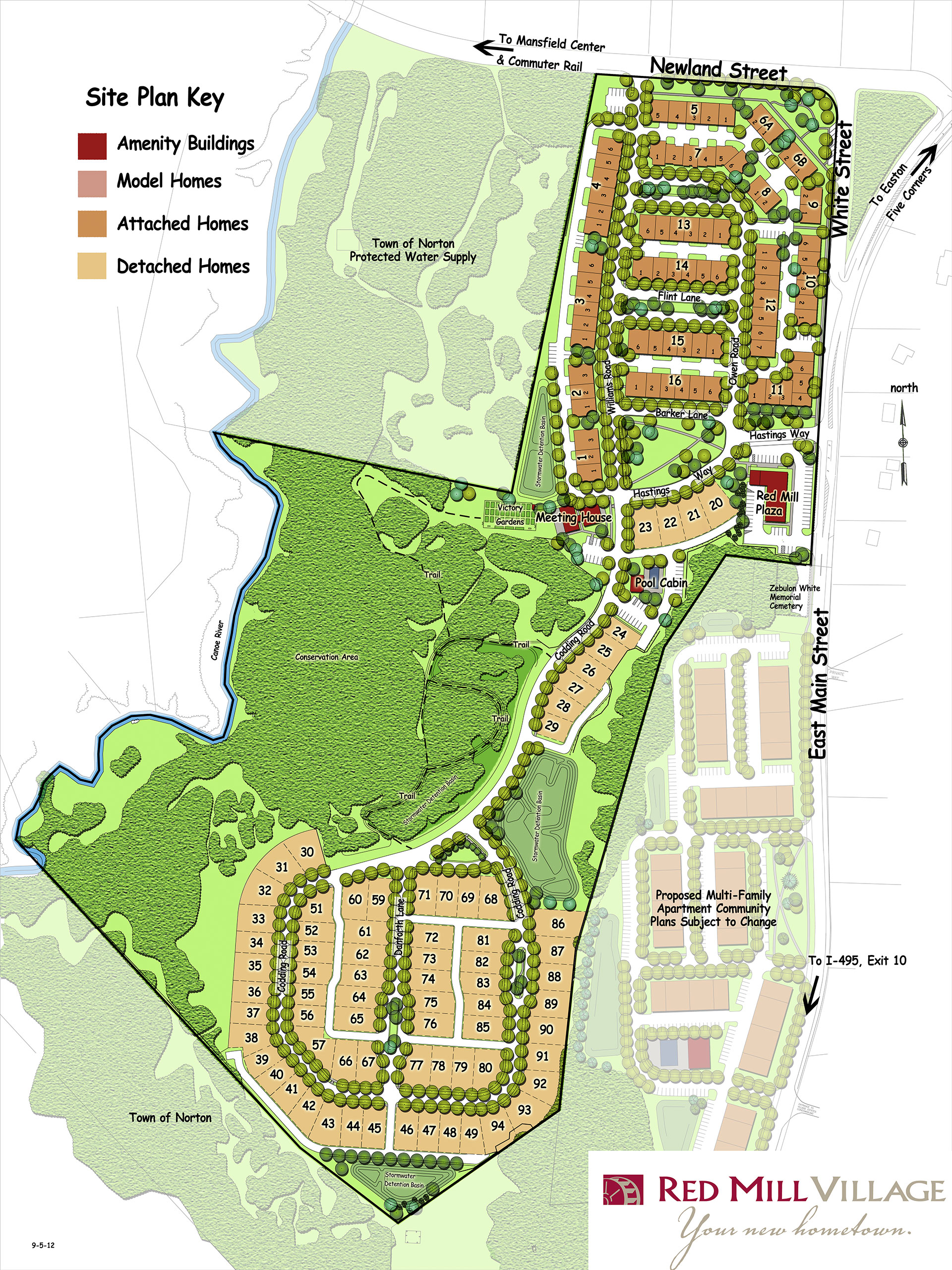
Red Mill Village is the third Active Adult community built by Thorndike. Three times must be the charm as Red Mill Village was named Best Active Adult Community in the Nation by the National Association of Homebuilders in 2005. RMV has come to define Smart Growth and Traditional Design in New England. RMV offers attached and detached homes arrayed along a series of pedestrian friendly tree lined streets punctuated by a village green, a series of vest pocket parks and amenities arranged to reinforce this community as a neighborhood rather than a collection of homes.
Norton, MA
Completed
2016
With Thorndike, you always talk to a real person. Our team of experts is ready to answer questions about plans, pricing, and availability.